Fully accessible shower and restroom access in one private, ADA-compliant suite.
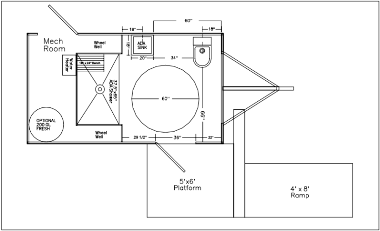
The Single ADA Shower and Restroom Combo Trailer provides one spacious ADA-compliant private room equipped with a shower, toilet, sink, and mirror. Designed with accessibility and safety in mind, this climate-controlled unit ensures comfortable use for all individuals.
Number of Stations: 1 (unisex)
Box Size: 12.5′ x 8.5′
Length w/ Ramp: 23′
Width w/ Ramp: 13.5′
Height w/ AC: 12.5′
Air Conditioner: 13500 BTU
Onboard Fresh Water Tank Capacity: 200 gallons
Self-Contained Waste Tank Capacity: 300 gallons
Power Requirements: Two dedicated 20 amp outlets within 100 feet of trailer – we can provide a generator if needed.